TEMAS
¿Te apetece echar un vistazo a una obra que estamos terminando?
- - Emplazamiento: San Lorenzo (Ponferrada)
- - S. Util: 184,00 m2
- - S. Construída: 230,00 m2
- - S. Porches: 69,00 m2
- - Plazo de Ejecución: 18 meses.
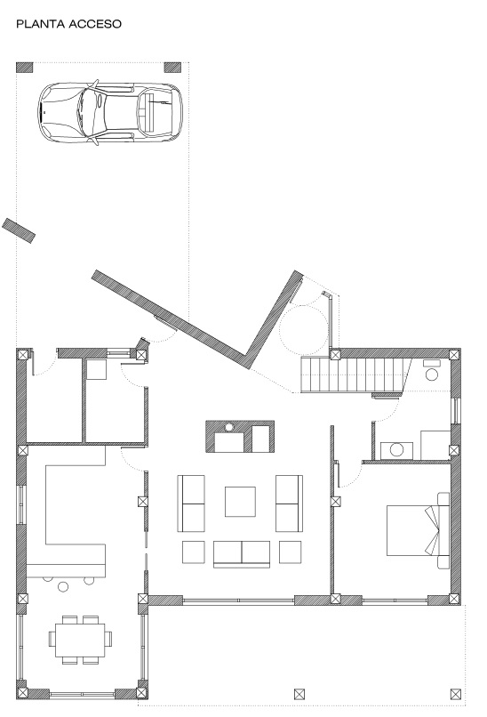
VIVIENDA EN SAN LORENZO
Encontrar una vivienda en el mercado que se adecue a nuestras características y a nuestra personal manera de vivir es cada día más complicado.
En este caso, nuestros clientes decidieron confiar en nosotros para ayudarles a conseguir un espacio que se adaptase a sus gustos y necesidades.
Para ello, esta joven pareja, nos facilitó su programa de necesidades que constaba de:
- - Dos plantas
- - Posibilidad de vida autónoma en planta baja sin necesidad de utilizar la superior.
- Esto fue determinante para proyectar en esta zona salón, cocina, dormitorio y un baño, a los que se incorporó una sala de calderas y un tendedero. Posteriormente se buscó una zona de uso doméstico exterior en forma de porche al que se accede desde el salón, la cocina y el dormitorio. Además, en la fachada principal se crea una pérgola que funciona como aparcamiento cubierto para dos vehículos.
- - Zona nocturna en la planta superior.
- En planta alta se nos pedía un dormitorio tipo suite con vestidor y baño, además de otros dos dormitorios y un baño.
Cuestiones como la orientación, las horas de asoleo, la relación con el entorno, y el aprovechamiento y ahorro energéticos han sido esenciales en la resolución de este proyecto.


FOTOGRAFIAS
Las fotografías se corresponden a los últimos días de ejecución, por lo que todavía se aprecian restos de material en sus inmediaciones. Aportaremos nuevas en cuanto tengamos oportunidad de acercarnos a comprobar el resultado con el entorno urbanizado.
Hasta entonces, si te ha interesado todo esto te animamos a seguirnos a través de nuestras páginas ARQUITECTOS DE LEON en Facebook o Twitter en donde seguiremos hablando de muchas más cosas, y si lo que quieres es consultarnos tu caso concreto te atenderemos encantados en
consultas@arquitectosdeleon.com
CARLOS ANTA ARIAS Y ROSARIO GARCIA ARIAS. ARQUITECTOS
PONFERRADA LA BAÑEZA LEON
